ABOUT
CREATOR
INTERIOR DESIGN
DISCO HOUSE
VISUAL ART
TEXTILE DESIGN
PHOTO EDITION
CONTACT
W I T O R R É S S U T I
ABOUT
CREATOR
INTERIOR DESIGN
DISCO HOUSE
VISUAL ART
TEXTILE DESIGN
PHOTO EDITION
CONTACT
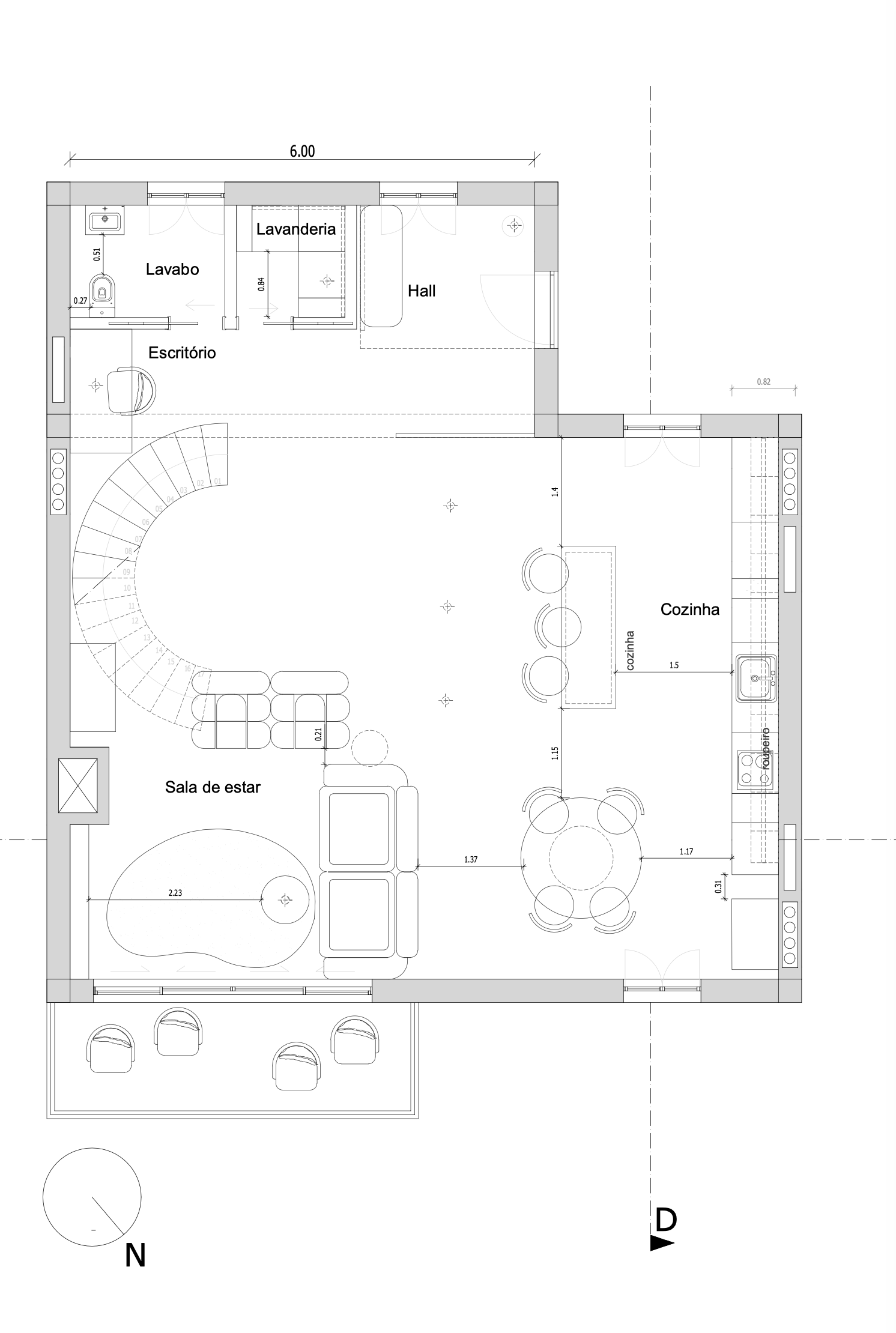
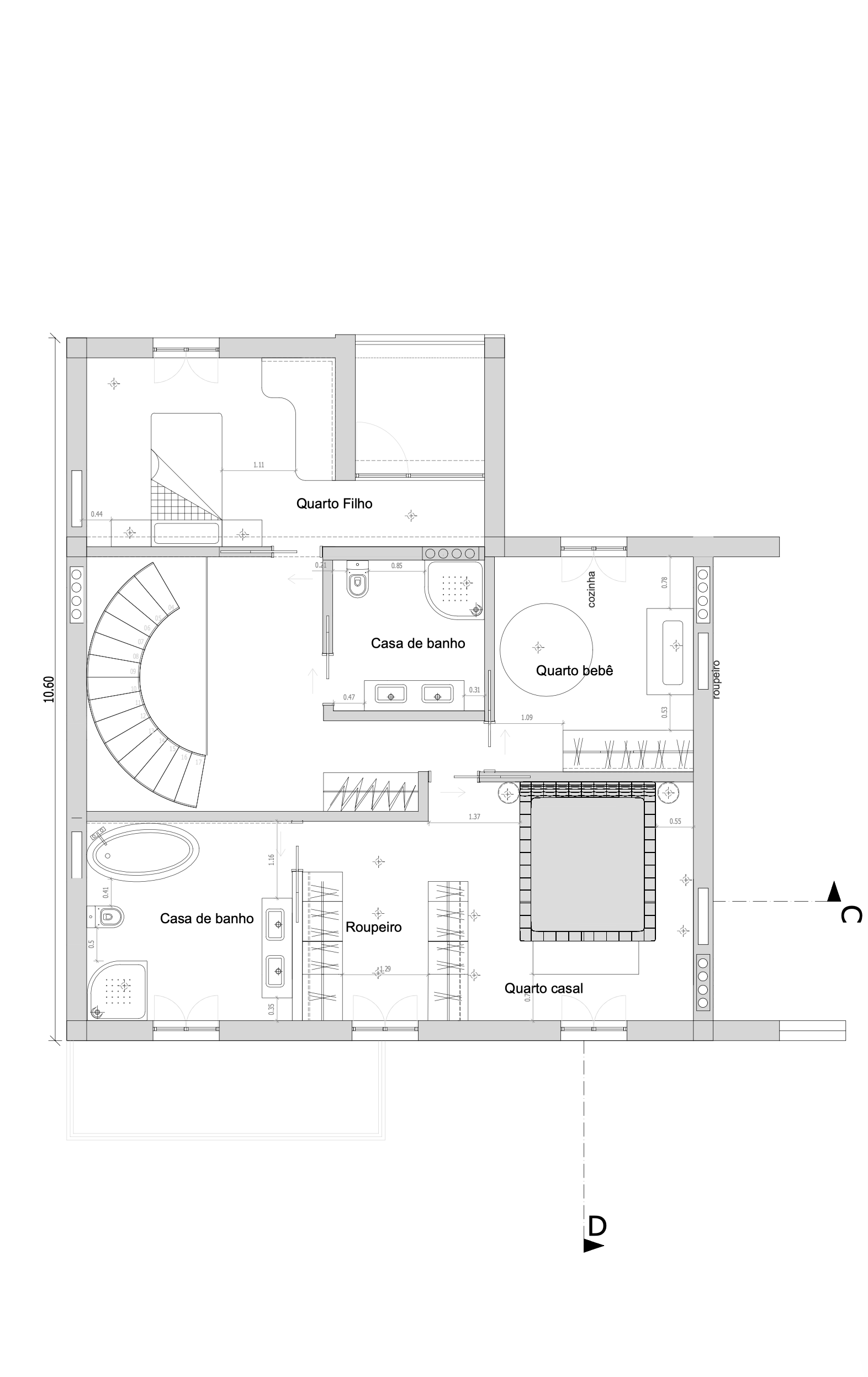
DISCO HOUSE
As part of his final project at the Lisbon School of Design, Witor Réssuti developed this Interior Design concept to demonstrate his skills and design vision.
↑
Back to Top